Логотип Zubitronika

Зубитроника

Современные решения для зубообработки

Зубодолбежный станок модели 5А140П с ЧПУ

Станок предназначен для высокоточной обработки цилиндрических зубчатых колёс внутреннего и наружного зацепления методом обкатного долбления дисковым долбяком. Станки обеспечивают формирование эвольвентного профиля зуба за счёт кинематически точного согласованного движения инструмента и заготовки, что позволяет получать зубчатые колёса с высокой точностью по шагу, профилю и направлению линии зуба

Зубодолбежный станок модели 5А140П с ЧПУ

Описание кинематической схемы

Станок 5А140Ф3 станок оснащен цифровой гитарой деления (Традиционная механическая гитара деления со сменными шестернями отсутствует): вращение штосселя долбяка - ось Y и вращение стола - Ось Z имеют собственные высокомоментные серводвигатели, синхронное движение осей обеспечивает специальный модуль движения.

Зубодолбежный станок модели 5А140П с ЧПУ - Описание кинематической схемы

В цепь главного привода (возвратнопоступательное движение штосселя - Ось А) встроен асинхронный электродвигатель с частотной регулировкой числа двойных ходов режущего инструмента.

Ось Х - Радиальное перемещение стола оснащена ШВП класса точности IT5 и серводвигателем, в качестве обратной связи используется линейка с точностью позиционирования 1мкм.

Спиральное движение радиальной подачи позволяет на 20-30% повысить производительность обработки или увеличить стойкость режущего инструмента.

Оси ручной настройки: С – Смещение стойки A' – Настройка высоты рабочей зоны и величины хода штосселя.

 

Управление

Станок 5А140 оснащен ЧПУ - переналадка станка производится автоматически, путем ввода параметров детали. На дисплее станка можно задать любое количество циклов, глубину и скорость радиального врезания, фиксировать точку загрузи и выгрузки изделия. В режиме резания, производится индикация глубины врезания, время обработки детали. Возможность хранения в памяти устройства ЧПУ до 100 различных наладок.

Зубодолбежный станок модели 5А140П с ЧПУ - Управление

Основные технические данные

Наибольший делительный диаметр обрабатываемого зубчатого колеса при наружном и внутреннем зацеплении500 мм
Наибольшая ширина нарезаемого венца100 мм
Наибольший модуль8
Диаметр рабочего стола560 мм
Базирующее отверстие в столе или фланце шпинделя изделия110 мм
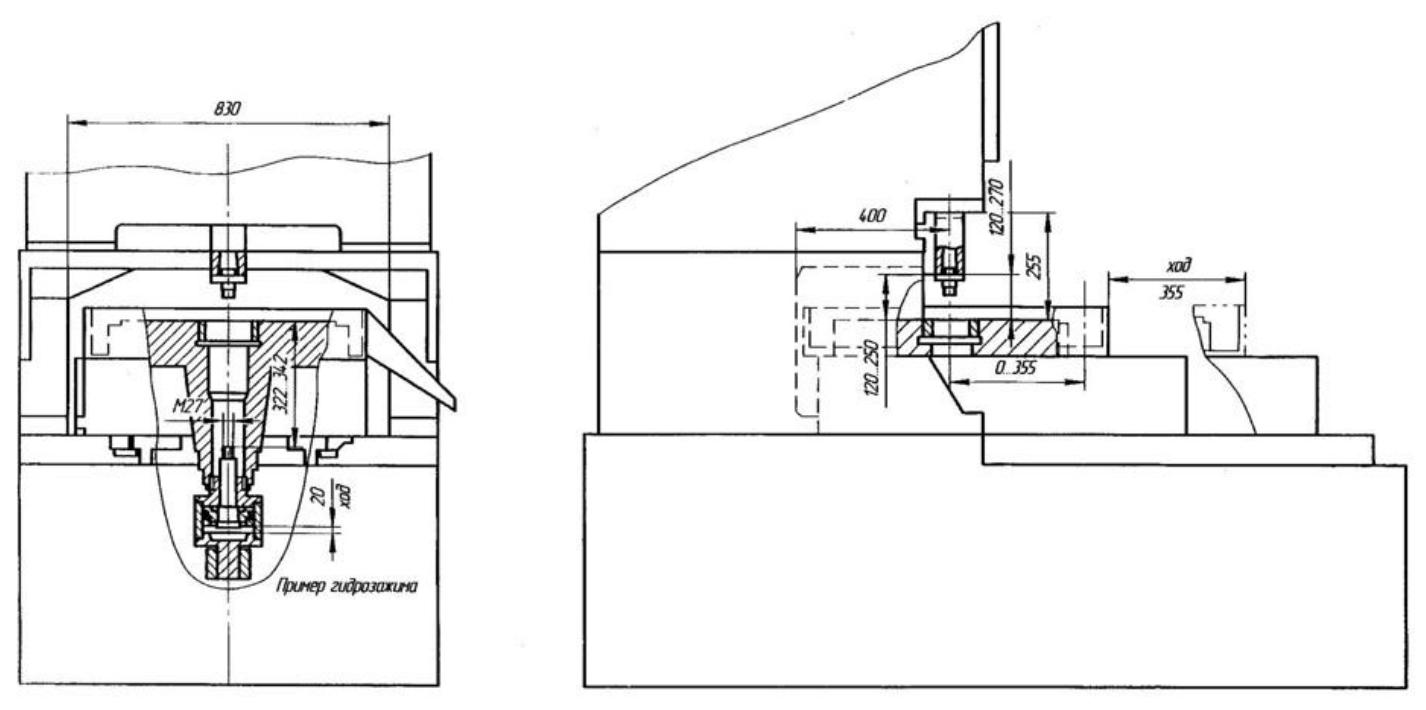
Перемещение стола относительно оси инструмента355 мм
Конец шпинделя для крепленияотверстие
инструментаконус Морзе 5
Расстояние между зеркалом стола и торцом шпинделя инструмента 
Наименьшее120 мм
Наибольшее270* мм
Наибольший ход шпинделя (инструмента)125 мм
Перемещение шпинделя150 мм
Пределы чисел двойных ходов55-560 В мин 
Габариты станкаДлина 1975 мм
 Ширина 1690  мм
 Высота 2510 мм
Вес станка7500 кг

Станок 5А140Ф3 соответствует нормам точности по ГОСТ 658-89.

Наладочные установки (Эскиз)

Зубодолбежный станок модели 5А140П с ЧПУ - Наладочные установки (Эскиз

Рабочий стол (Эскиз)

Зубодолбежный станок модели 5А140П с ЧПУ - Рабочий стол (Эскиз

 

Дополнительная информация